VGRADNA PLOŠČA Z NAPO BOSCH PVS611B16E

-
Indukcijska kuhalna plošča z integrirano napo združuje dva aparata v enega za popolne rezultate kuhanja.
- Kuhalna plošča z integrirano napo.
- TouchSelect.
- CombiZone.
-
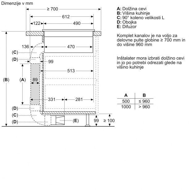
Blagovna znamka BOSCH VRSTA KUHALIŠČA INDUKCIJSKO ŠTEVILO KUHALIŠČ 4 ŠIRINA 59,2 CM VIŠINA 22,3 CM VRSTA NAPE MODEL ODZRAČEVANJA MODEL RECIKLIRANJA GLOBINA 52,2 CM PRETOK ZRAKA DO 595 M3/H GLASNOST DELOVANJA 69 DB POVEZLJIVOST WI-FI NE ENERGIJSKI RAZRED B GARANCIJA V LETIH 2 DOD.JAMSTVO/POGOJI GARANTA/LET 3 -



























