SPLAKOVALNIK, PODOMETNI GEBERIT DUOFIX SIGMA 8 CM H=114 CM

-
Montažni element Geberit Duofix za stenski/konzolni WC, vgradna višina elementa 114 cm, s podometnim splakovalnikom Sigma 8 cm.
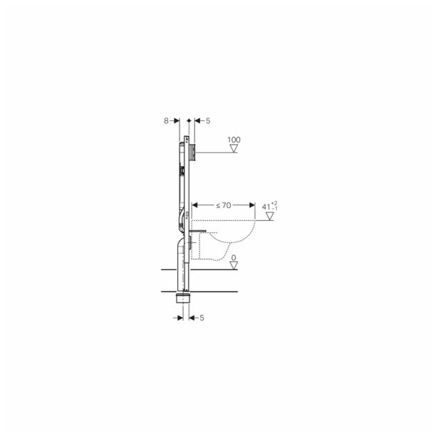
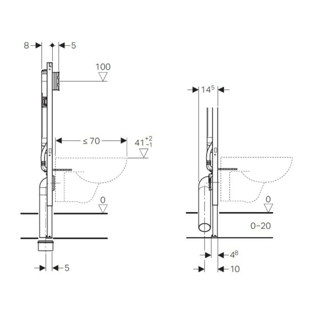
Geberit Duofix montažni element s podometnim splakovalnikom Sigma 8 cm (serija 2016) za stenski/ konzolni WC, aktiviranje spredaj, vgradna višina 114 cm, globina 8 cm. Za univerzalno masivno vzidavo in suhomontažno vgradnjo, za predstensko in stensko montažo, globina elementa 8 cm. Za stenske WC-je z velikim konzolnim nastavkom do 70 cm. Podometni splakovalnik Sigma 8 cm z dvokoličinsko splakovalno tehniko 3/6 l. Element je sestavljen iz: - montažnega okvirja 4/4 cm površinsko zaščitenega s praškanjem in opleskanega z modro barvo Geberit - predmontiranega in izoliranega podometnega splakovalnika Sigma 8 cm (serija 2016) - po višini stopenjsko nastavljivih nog 0-20 cm - dveh po globini nastavljivih elementov za predstensko montažo - dveh kompletov navojnih palic in matic M12 za pritrditev školjke z osno razdaljo 18 ali 23 cm - univerzalnega priključka za vodo 1/2" z ZN in vgrajenim kotnim ventilom - po globini prilagodljive gradbene zaščite za revizijsko odprtino na zatik brez uporabe orodja, primerne za površinsko izravnane aktivirne tipke (Sigma60) - zvočne izolacije pritrditve odtočne cevi - PE odtočnega kolena ? 90/90 mm - PE prehodnega kosa ? 90/110mm - garniture manšet ? 90 mm - cevi za izvedbo priključka vode za Geberit AquaClean - pritrdilnega materiala
-
Blagovna znamka GEBERIT TIP PODOMETNI SPLAKOVANJE 3 DO 6 LITROV -













